Sopronban kurucdombon csendes családi házas övezetben 376 m2-es enyhén lejtős telken hangulatos házikó eladó!
A ház a telek adottsága miatt kétszintes.Az utca felöli részen 50 m2-es a ház alatti külön nyíló lakrész 33 m2 +7 m2-es kazánház található.
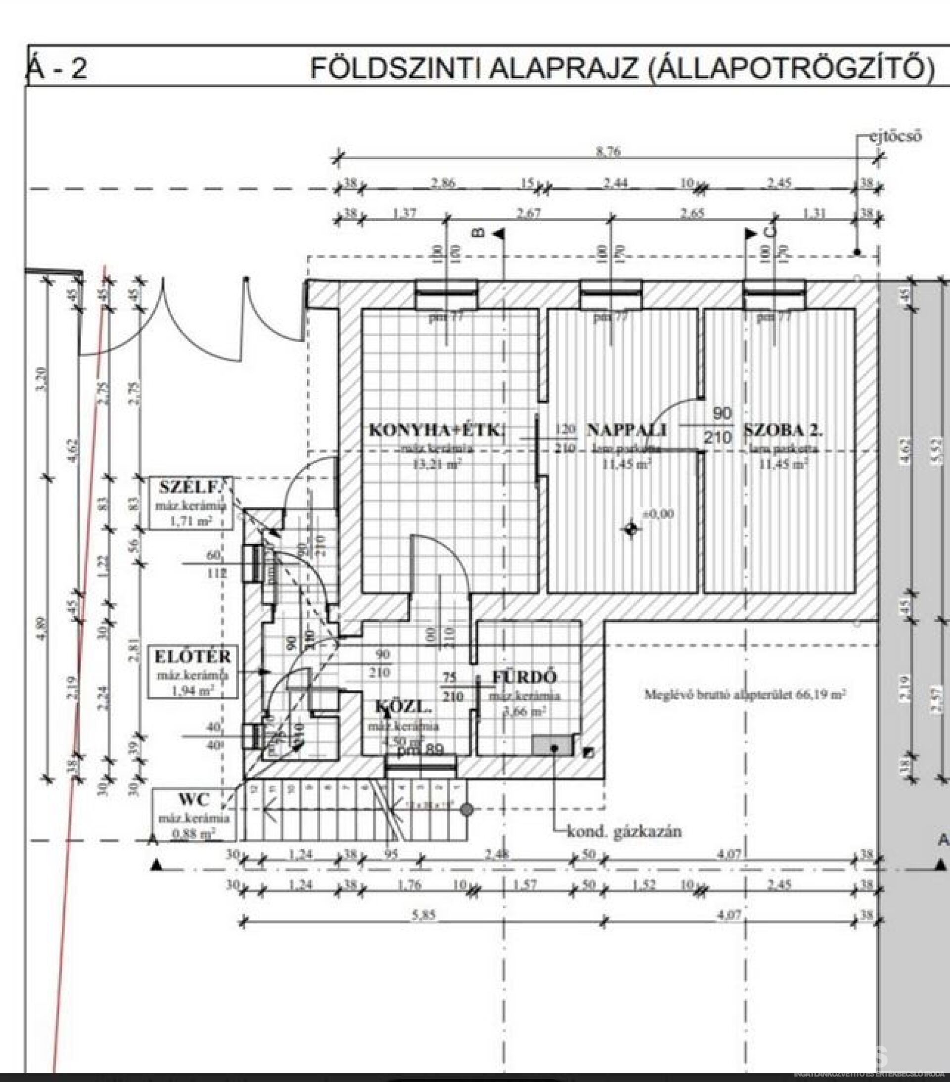
A ház elosztása nagyon praktikus :előszoba,fürdőszoba ,wc külön,nappali konyha étkező és 2 félszoba.
Az alsószinten 1 szoba (konyha kialakítása lehetséges,fürdőszoba wc-vel.
Az alsószintet néhány éve alakították ki.az ingatlan nagy előnye ,hogy igazából 2 különnyíló lakrész található benne.Ideális lehet kiadásra,vagy 2 generáció számára is.
A kert nagyon hangulatos,enyhe lejtéséből adódóan az utca irányáből sem lehet belátni.Az udvaron fedett gépkocsi beálló.
Az alsószinten terasz kialakítása lehetséges -közvetlen kijárattal a kert irányába.
A házat folyamatosan karban tartották,bővítés hozzáépítés lehetséges.
Nagyon hangulatos szép állapotú ház!
Az ingatlan extra szolgáltatásai:
- Kurucdombon hangulatos házikó eladó











